3750 N Lake Shore Drive
Lakeview East

About the Building
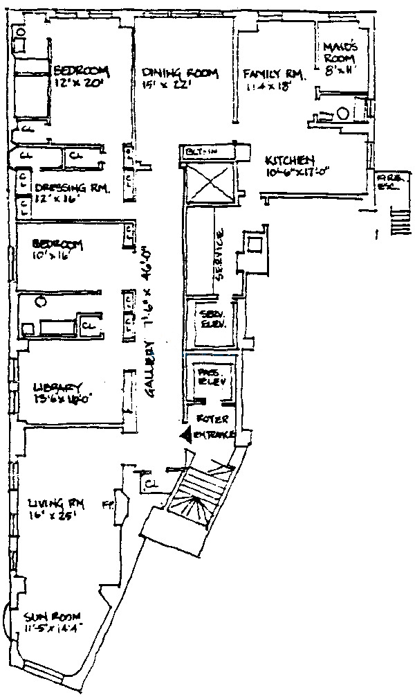
Located in the Lakeview East neighborhood of Chicago, just across the street from Lincoln Park and the lakefront, 3750 N. Lake Shore Drive is a sought-after high-rise condo building that offers quality construction, roomy units and all the modern amenities and services you need to live in comfort and style in the big city. Built in 1926, this structure houses 132 individual units and includes valet parking to accommodate residents with vehicles. The various floorplans consist of anywhere from 2 to 3+ bedrooms, with an average master bedroom size of 226 square feet and a second bedroom of 200 square feet. However, if you prefer a bit more space to sleep in, there are 342 square-foot bedrooms available in several units.
Some of the building's smaller living rooms provide 315 square feet in which to put that plush wrap-around couch and the new flat screen TV, but the average size is 360 square feet for the main room. Either way, you'll have enough room spread out in front of the television on those quiet nights, or to host great get-togethers for the occasional celebration or impromptu gathering. Just make sure no little four-legged friends sneak into the party because it would violate the building strict no-pets policy.
While the ability to host parties is often an essential factor in buying a home, there are other more fiscal-aspects you're probably interested in knowing. For example, what the price per sq. foot is for the units in the building and what the properties here are selling for these days. Well, lucky for you, we've got that info right here, too. At 3750 N. Lake Shore Drive, the average price per square foot is $171, with the minimum listing price for the building at $259,900. While certain size units (meaning a two- versus a three-bedroom) sell better than others, a 2-bedroom place most recently sold for $777,000 just around 10/20/2006. On top of the pricing data, it's nice to know the market stats for the particular site as well. Once again, we've got that right here for you.
The maximum length of time a unit in this building stays on the market (which means the time between listing and closing) is 371 days. The minimum number of days it takes to sell real estate in this Lakeview building is 50 days. Of the units that are currently listed, 2-bedroom residences are typically on the market for an average of 140 days.
Learn more about 3750 N Lake Shore Drive
Available Units
Floorplans

Nearby Buildings
-
320 W Oakdale
Units: 54 | Year Built: 1956
-
3520 N Lake Shore Drive
Units: 166 | Year Built: 1924
-
3950 N Lake Shore
Units: 660 | Year Built: 1956
-
3534 N Lake Shore Drive
Units: 165 | Year Built: 1923
-
2909 N Sheridan
Units: 223 | Year Built: 1952
-
3750 N Lake Shore Drive
Units: 132 | Year Built: 1926
-
534 W Brompton St
Units: 61
-
3300 N Lake Shore Drive
Units: 84 | Year Built: 1929
-
Lake Park Plaza
Units: 448 | Year Built: 1968