About the Building

Although it is currently under construction, Superior 110 is expected to be completed in 2008, and when it is finished, it promises to be one of the most attractive residential high-rises in Chicago's popular River North neighborhood. At 26 stories, this sparkling glass tower will afford spectacular views of the downtown Chicago skyline, which can also be enjoyed from the comfort of a spacious balcony. Located at 110 W. Superior, this Chicago condo development will have 62 individual units with assigned/deeded parking for residents' vehicles.

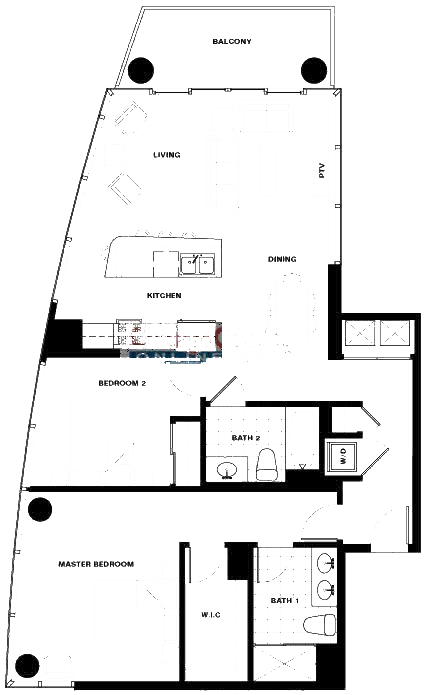
This River North building offers residences a number of diverse layouts and an average of 1,150 square feet of living space. The different floorplans include anywhere from 1 to 3 bedrooms with a standard master bedroom size of 143 square feet. Generally, the kitchens are 121 square feet, providing plenty of room to prepare a meal for the family, or throw together a banquet-size spread for a few friends at your new home (who knows, maybe you'll even invite over the neighbors for a little meet and greet).

Grand dinner parties or not, sometimes the deal breaker in purchasing a new home is whether or not your four-legged family member is welcome. Well, in case you have a Fido or other furry friend waiting in the wings, you'll be happy to know this residential building is pet friendly. So don't forget to scope out that new spot for the food dish.

In addition to the fundamentals of 110 W. Superior, you're probably interested in learning a little something about the bottom line involved in living at a place like this in the River North neighborhood. Like, for example, how much might you have to pay in assessments and taxes every year? Well, the typical assessments for this charming Chicago residence are $444 per month, in addition to average annual taxes between $1,500 and $4,000. And just to help you see how a piece of real estate here stands up to property in other buildings in River North, or elsewhere in the city, we've compiled the most up-to-date data-in case you want to compare.

The price per square foot for units at 110 W. Superior is $494, with an average size of 1,150 square feet. The standard length of time a unit in this building stays on the market (between listing and closing) is around 60 days. The average listing price of a home at 110 W. Superior is $569,000, and there are currently few 1-bedroom residences available at this lovely great residential enclave.

Learn more about Superior 110

This site is protected by reCAPTCHA Enterprise and the Google Privacy Policy and Terms of Service apply.

  • Neighborhood River North
  • Total Number of Units 62
  • Year Built 2008
  • Air Conditioning CEN AIR, ZONED
  • Exterior AVS, GL
  • Common Amenities DOOR PERSON, ELEVATO
  • Garage HEATED, DEEDED SOLD
  • Parking DEEDED SOLD SEPARATE
  • Pet Policy CATS OK, DOGS OK
  • Close To The Lakefront
  • Close To A Bus Stop
  • Close To Public Parks
  • Close To A Dog Park
  • Near A Beach
  • Has An Elevator
  • Has A Fitness Center
  • Has A Doorman

Available Units

There are no units for sale right now, but fill out the form below to stay up to date on the latest units for sale in the building.

Floorplans

801-1901 Tier | 2 bed/2.0 baths | 1325 sqft
Log In

This site is protected by reCAPTCHA Enterprise and the Google Privacy Policy and Terms of Service apply.

By logging in, you agree to our terms of service.

Register

This site is protected by reCAPTCHA Enterprise and the Google Privacy Policy and Terms of Service apply.

By registering, you agree to our terms of service.

Forgot Password
Error | Dream Town Real Estate
500

Oops!

Something went wrong. Don't worry—we'll get you back on track in the right direction.

Log In

This site is protected by reCAPTCHA Enterprise and the Google Privacy Policy and Terms of Service apply.

By logging in, you agree to our terms of service.

Register

This site is protected by reCAPTCHA Enterprise and the Google Privacy Policy and Terms of Service apply.

By registering, you agree to our terms of service.

Forgot Password