One Magnificent Mile
950 N Michigan | Gold Coast

About the Building
This stunning mixed-use skyscraper looms over the Magnificent Mile shopping district at 57 floors and includes fashion retailers in the ground floors, which are followed by office space and luxury condominiums. Situated in Chicago's fashionable Gold Coast neighborhood at 950 N. Michigan, this condo building provides homeowners with the conveniences and comforts of living in a multi-unit structure, while affording a sense of privacy and personal style that can be hard to come by. The range of floorplans allows you to choose the best fit for your needs, from the number of bedrooms to the size of your kitchen. And no matter what layout you select, the properties at One Magnificent Mile incorporate a touch of modern luxury with the essential amenities that make the city lifestyle that much sweeter.
Along with the basic design of the units and the number of bedrooms you want, it's good to get the inside scoop on the building's sales history and the current status of available properties. As a potential homeowner, these sorts of details are invaluable to making your decision on whether or not to buy. So, in order to make your life easier, we've put together the most recent information on One Magnificent Mile from the price per foot to the assessments fees to the policy on pets.
The average unit size in the building is 1,570 square feet with a typical price per square foot of $377. There are currently few 1-bedroom residences available in One Magnificent Mile, with an average selling price of $570,714. For the most part, properties in this popular Gold Coast building remain on the market for at least 43 days, although some take as long as 294 days to sell. As for monthly assessments, residents pay $614 on average for this sought-after Chicago residence, on top of taxes that generally cost $8,166 annually. And, for the animal-lovers, One Magnificent Mile does allow pets, so you can start packing up Fluffy's things for the move.
Learn more about One Magnificent Mile
Available Units
-
Unit # 2901
$479,000 | 1 bed/1.1 bath
-
Unit # 4003
$1,095,000 | 3 bed/3.1 bath
-
Unit # 4605
$5,995,000 | 6 bed/8.3 bath
-
Unit # 3704
$875,000 | 3 bed/2.1 bath
-
Unit # 3705
$1,150,000 | 2 bed/3.1 bath
-
Unit # 3501
$449,900 | 1 bed/1.1 bath
-
Unit # 4103
$1,500,000 | 3 bed/3.1 bath
-
Unit # 4904
$2,699,000 | 3 bed/4.1 bath
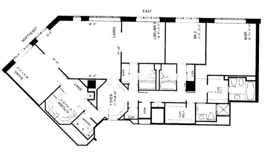
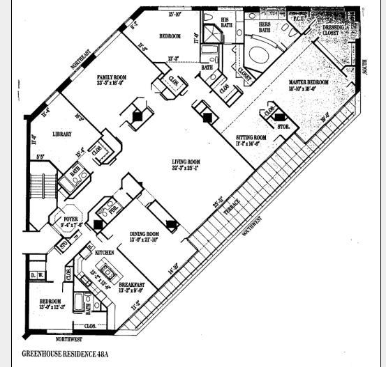
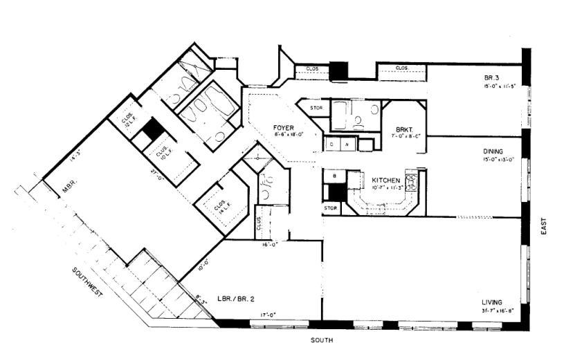
Floorplans

Nearby Buildings
-
Ritchie Tower
Units: 101 | Year Built: 1970
-
1516 N State
Units: 64 | Year Built: 1974
-
100 E Bellevue Ave
Units: 170 | Year Built: 1971
-
2 East Oak
Units: 304 | Year Built: 1969
-
1340-1344 N Dearborn
Units: 87 | Year Built: 1969
-
40 E Delaware Pl
Units: 75 | Year Built: 1920
-
50 E Bellevue Ave
Units: 142 | Year Built: 1979
-
1122 N Dearborn
Units: 104 | Year Built: 1999
-
680 N Rush St
Units: 257 | Year Built: 2009