The Sexton
360 W Illinois | River North
About the Building
This particular condo development in Chicago's trendy River North neighborhood was built in 1923 and originally served as a warehouse for Sexton Foods, but it was recently converted for residential use, and it now features some of the most desirable residences in Chicago. The Sexton offers comfortable and spacious units and all the modern conveniences you need, in the heart of Chicago’s city center. Located at 360 W. Illinois, this development offers 252 individual units with a number of layouts and general vicinity parking for residents' vehicles.
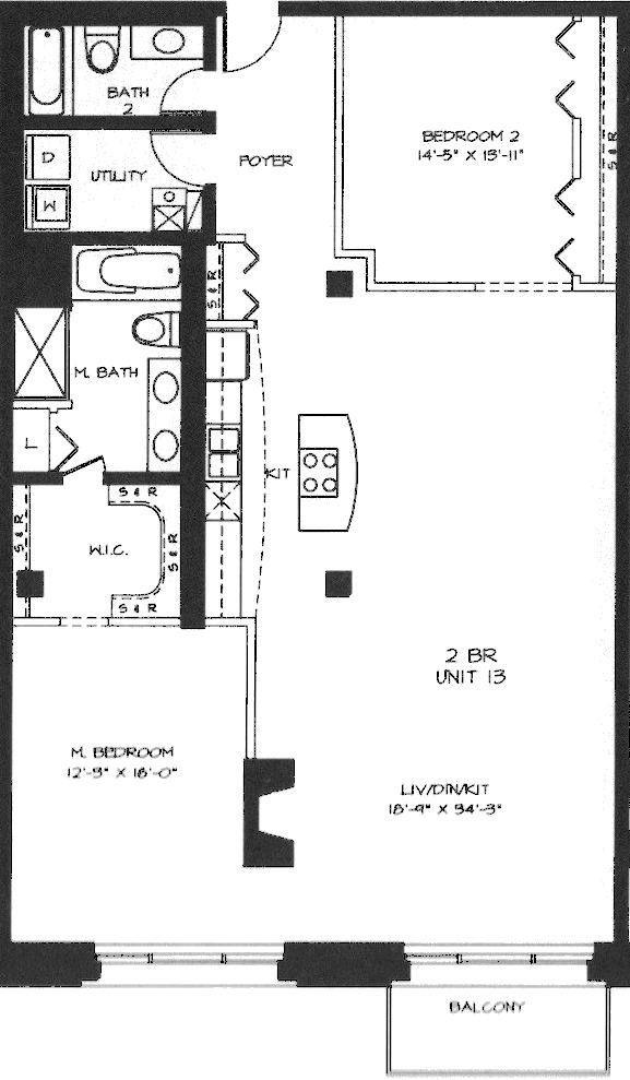
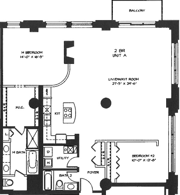
In this day and age, there are some essential elements that we just expect have in our urban dwellings, while other features are an added bonus that make the city lifestyle that much sweeter. The units at 360 W. Illinois incorporate the basic necessities with a touch of luxury, from the handy building services and facilities to the amenities of your private abode. The building's floorplans, which include anywhere from 1 to 3 bedrooms, come in all different square footages to suit the needs of homeowners with varying family sizes. The average master bedroom is 139 square feet, although some can be as large as 180 square feet. The second bedroom is typically 132 square feet, still a good amount of space for the growing members of the household, or a great spot for the home office. And, in case your family includes a lovable cat or dog (or fish or bird, etc.), the building is pet-friendly.
The price per square foot for property at 360 W. Illinois is $309. From listing to closing, the standard length of time a unit in this building stays on the market is 80 days. In regards to properties that are currently for sale, the average number of days a 1-bedroom unit has been listed for is around 60. There are currently few 1-bedroom residences available in this River North development, that maintain an average listing price around just or slightly above the market price. In addition to the upfront price for real estate in this striking residential structure, it's helpful to know how much assessments and taxes are, since you'll be paying those on top of the mortgage. For this particular building, the average assessments are $263 per month and taxes cost $2,724 per year.
Learn more about The Sexton
Available Units
Floorplans
Nearby Buildings
-
River Bank Lofts
Units: 132 | Year Built: 1920
-
Huron Point
Units: 99 | Year Built: 2001
-
451 W Huron
Units: 135 | Year Built: 2007
-
Kinzie Park
Units: 54 | Year Built: 2001
-
Amalfi Condo Hotel
Units: 213 | Year Built: 1999
-
2 E Erie Condos
Units: 254 | Year Built: 2002
-
Union Square Lofts
Units: 216 | Year Built: 1999
-
Residences At Grand Plaza
Units: 283 | Year Built: 2003
-
The Grand On Grand
Units: 106 | Year Built: 2004