Kilmer House
1555 N Sandburg Ter | Old Town

About the Building
Although it is just one of the condo developments in Chicago's beautiful and historic Old Town neighborhood, Kilmer House is one of the most sought-after residences in the neighborhood. Situated at 1555 N. Sandburg Ter, these beautifully-crafted units provide quality construction, spacious layouts and all the modern amenities you need to live in comfort.
Just to give you the big picture, the units here average around 900 square feet, with the price per square foot at $272. In addition to a varying layouts, the range of dwellings here accommodate with different sized kitchens, living rooms, dining rooms and family rooms. For example, if you are big into cooking and like to have the counter space to go with your passion, there are 108 square-foot kitchens, not to mention 345 square-foot dining room in which to serve your culinary creations.
In addition to knowing how big the place actually is—and whether you'll be able to fit your sectional sofa in the living room—it’s also helpful to get the lowdown on the selling history and current trends of properties in the building. The minimum time from the listing date to closing that a unit in this building has been on the market is 60 days; the maximum is 95 days. Depending on the number of bedrooms, the average market time for a property in this building fluctuates. And to give you an idea of the going rate today for real estate at this particular site, a 1-bedroom unit sold for $245,000 in February of 2007.
Learn more about Kilmer House
Available Units
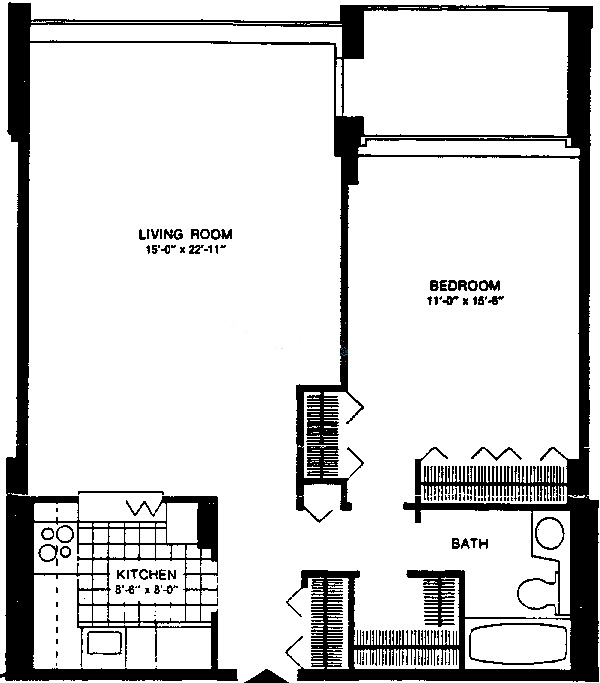
Floorplans

Nearby Buildings
-
Bryant House
Units: 243 | Year Built: 1965
-
Royalton Towers
Units: 55 | Year Built: 2002
-
Gallery 1250
Units: 196 | Year Built: 1984
-
Oak Club Condos
Units: 52 | Year Built: 1995
-
The Venetian
Units: 88 | Year Built: 2004
-
Cummings House
Units: 324 | Year Built: 1960
-
The Neapolitan
Units: 95 | Year Built: 2001
-
Old Town Village East
Units: 60 | Year Built: 2005
-
1309 N Wells
Units: 80 | Year Built: 1990