About the Building

This beautifully-renovated loft building was built in 1920, but it wasn't converted for residential use until 1995. The units in this building feature dramatic high ceilings, exposed brick walls and large windows. The building, which is located right downtown in Chicago's Loop at 728 W. Jackson, houses 226 separate condos with general vicinity parking to accommodate residents who own their own vehicles. In addition to the well-maintained craftsmanship of the building, this great dwelling offers several different layouts with varying numbers of bedrooms and unit size.

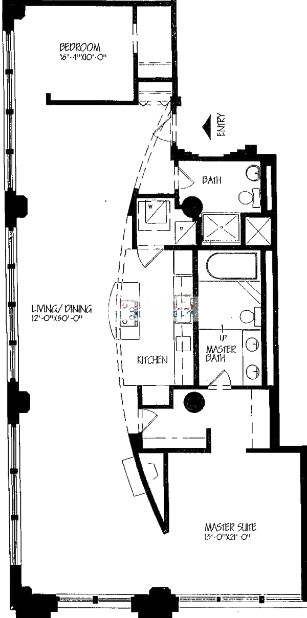
On average, the residences in this building provide 1,009 square feet of living space. The choice of floorplans include anywhere from 1 to 3 bedrooms, which can range in area from 132 square feet to 270 square feet. But home isn't only about where you lay your head at night-the rest of the place is just as essential when looking for that perfect abode. The cook in the household will find the kitchens here are divine, covering 105 square feet of the entire unit. That's enough room to whip up a delicious five-course meal for the occasional dinner party, which can be hosted in the 306 square-foot dining room. In addition, there's a large 522 square-foot living room to let your guests roam around, and not even have to worry about bumping elbows.

In addition to the unit basics, you'd probably like to know a bit about how much a place like this in the Loop is going to cost. Of course, the numbers tend to vary depending on the particular unit, but the average is $264,900. The latest 1-bedroom place to sell went for $290,000 in May of 2007. On top of the asking price, it's important to think about the added expenses residents need to pay in taxes every year. For property in this building, the taxes generally cost $2,803 annually, so factor that in when calculating that mortgage rate.

Learn more about Haberdasher Square Lofts

This site is protected by reCAPTCHA Enterprise and the Google Privacy Policy and Terms of Service apply.

  • Neighborhood
  • Total Number of Units 226
  • Air Conditioning CEN AIR
  • Exterior BR
  • Common Amenities BIKE ROOM/TRLS, DOOR
  • Garage NONE
  • Parking NONE/NA
  • Pet Policy ADD'L PET RENT, CATS
  • Close To A Bus Stop
  • Close To Public Parks
  • Close To A Dog Park
  • Near An Expressway
  • Has An Elevator
  • Has A Fitness Center
  • Has In Unit Laundry
  • Has A Doorman

Available Units

There are no units for sale right now, but fill out the form below to stay up to date on the latest units for sale in the building.

Floorplans

10 Tier* | 1 bed/1.0 baths | 850 sqft