445 N Mcclurg Ct
Streeterville
About the Building
This beautifully-constructed condo development was built 1997 and offers all the modern amenities you need to live in comfort and style in the big city. It houses 52 separate units with general vicinity parking to accommodate car owners. In addition to the well-maintained craftsmanship of the building, this great dwelling offers several different layouts with varying numbers of bedrooms and unit size. Located in the popular Streeterville neighborhood of Chicago, this residence is just a few blocks away from the bright lights and shopping destinations of Michigan Avenue (aka the Magnificent Mile); and in the other direction, it’s just a quick jaunt over to Navy Pier.
On average, the residences in this building provide 3400 square feet of living space. Most of the floorplans include 3+ bedrooms, which can range in area from 140 square feet to 396 square feet. But home isn't only about where you lay your head at night-the rest of the place is just as essential when looking for that perfect abode. The cook in the household will find the kitchens here are divine, covering 400 square feet of the entire unit. That's enough room to whip up a delicious five-course meal for the occasional dinner party, which can be hosted in the 300 square-foot dining room. And what would a get-together be without a bit of mingling before sitting down to eat? Good thing there's a large 300 square-foot living room to let your guests roam around, and not even have to worry about bumping elbows.
In addition to the unit basics, you'd probably like to know some of the figures behind the fundamentals—more specifically, what a place like this in Streeterville is going to cost. Of course, the numbers change depending on the particular unit, but the average listing price is $1,199,000. The latest 3-bedroom place to sell went for $1,255,000 on 01/31/2006. Now, on top of the asking price, it's important to think about the added expenses residents need to pay in taxes every year. For property in this building, the taxes generally cost $15,644 annually, so factor that in when calculating that mortgage rate.
Learn more about 445 N Mcclurg Ct
Available Units
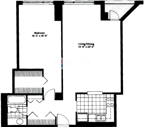
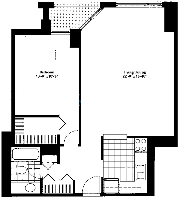
Floorplans

Nearby Buildings
-
445 N Mcclurg Ct
Units: 52 | Year Built: 1997
-
Ontario Place
Units: 393 | Year Built: 1990
-
Plaza On Dewitt
Units: 407 | Year Built: 1965
-
474 N Lake Shore Drive
Units: 502 | Year Built: 1991
-
The Grand Ohio
Units: 586 | Year Built: 1984
-
Streeterville Center
Units: 160 | Year Built: 1972
-
540 N Lake Shore Drive
Units: 150 | Year Built: 1920
-
201 E Chestnut
Units: 120 | Year Built: 1967
-
Cityview
Units: 424 | Year Built: 1991